
GRÄDDA
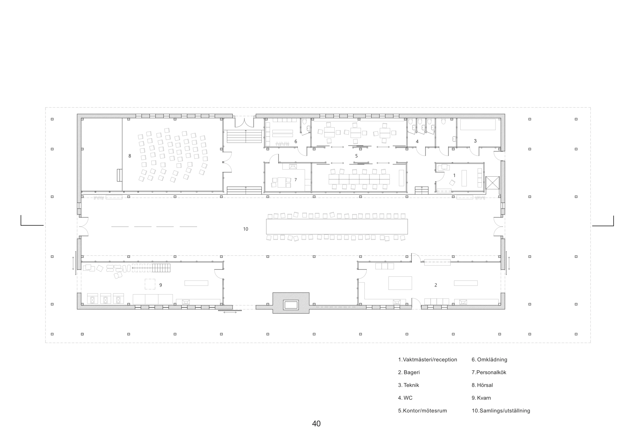
Förslag till ett nytt folkets hus i Vårdinge. Två skilda funktioner möts i byggnaden, en produktion med kvarn och bageri, och ett folkets hus med hörsal och mötesrum .
Mellanrummet och kopplingen dem emellan har styrt husets uppbyggnad. Ett centralt genomgående rum separerar och förenar de båda funktionskärnorna och följer upp axeln från kyrkan, in i folkets hus, och ner mot vattnet.
Alltsammans omsluts av samma tak och grundmur. Långbordet och bakningen blir centrala punkter med målet att skapa en plats för byn att förenas på. Ladans typologi är ett viktigt inslag i landsbygden, och Folkets Hus Vårdinge skapar en del av den känslan, av ett stort öppet rum med tektonisk kvalité, men i ett nytt sammanhang och blir här en mer samtida tolkning av en traditionell byggnad.






